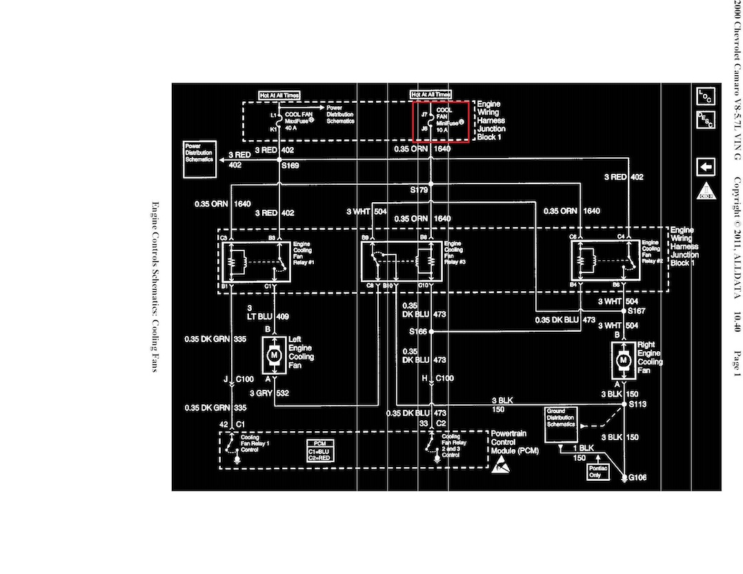
pemu1 Kirjoitettu 9. Elokuuta, 2014 Kirjoitettu 9. Elokuuta, 2014 Nyt tarvis kovempaa tietäjää. Flektit ollut pimeenä ja selvitellyt asiaa siihen pisteeseen, että releiden "ign hot wire" liekkö heräte suomeksi on pimeänä. Kaikista releiden pohjista. Mistä releet saavat ohjausvirtansa? Releiden pohjista lähtee oranssit johdot 3kpl ja ainakaan kabiinin puolelle en saanut niitä paikallistettua mittaamalla. Kaikissa kaavioissa johtojen tarina päättyy IGN HOT WIRE- kohtaan. Apu olisi tervetullut.
JoukoY Kirjoitettu 10. Elokuuta, 2014 Kirjoitettu 10. Elokuuta, 2014 IGN HOT meinaa että johdossa on sähkö kun autossa virta päällä. Flektille on varmaankin oma sulake, mittaa nyt ainakin onko sulakkeen molemmilla puolilla sähköä kun virrat päällä. Sitten tietää onko vika välillä Akku -> sulake vai välillä sulake -> rele.
Chevy Kirjoitettu 10. Elokuuta, 2014 Kirjoitettu 10. Elokuuta, 2014 Cool Fan 10A releille ja Cool Fan 40A flekteille,löytyy konehuoneesta.
pemu1 Kirjoitettu 10. Elokuuta, 2014 Kirjoittaja Kirjoitettu 10. Elokuuta, 2014 Joo, asia selvisi kun selvittelin sitä Amerikan poikien kanssa sähköpostilla viime yön. eli Oranssi johto lähtee samasta sulakerasiasta 10AMP(fan) sulakkeen takaa, kiemurtelee johtonipuissa ja tulee sulakkeen viereen kolmena kappaleena releiden pohjiin. vetasin johdon suoraan sulakkeen perästä releisiin ja homma alko rokkaan. Tiedoksi vielä että temppuillut ilmastointikin alkoi toimimaan samalla täydellisesti Toivottavasti on apua jollekkin vastaisuudessa.
Recommended Posts
Luo uusi käyttäjätili tai kirjaudu sisään
Sinun täytyy olla jäsen osallistuaksesi keskusteluun
Luo käyttäjätili
Rekisteröi uusi käyttäjätili helposti ja nopeasti!
Luo uusi käyttäjätiliKirjaudu sisään
Sinulla on jo käyttäjätili?
Kirjaudu sisään